想了解设备资料?报价?售后?请留言,速回电
厂家直销,留言立享本月优惠价免费提供环保政策、办厂手续、投资预算等资料

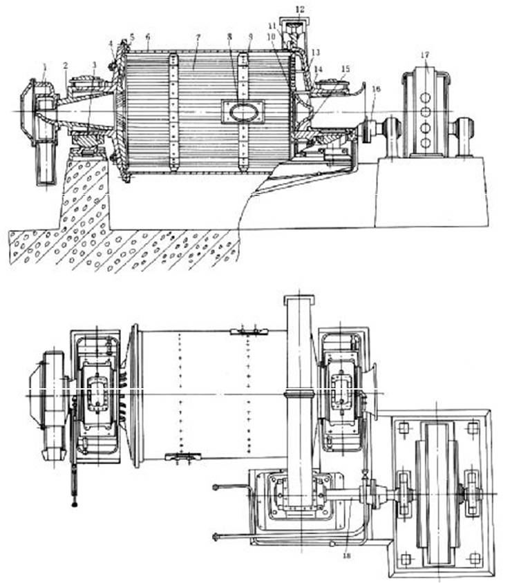
球磨机目前在市场上型号各异,每个产品的型号规格都不一样,但是,尽管球磨机的种类繁多,但是内部结构和原理都是相同的。今天就拿格子型球磨机结构为例,如下图1-7。

图 1-7 格子型球磨机
1-给料器;2-进料管;3-主轴承;4-扇形衬板;
5-端盖;6-筒体;7-筒体衬板;8-人孔;9-楔形压条;
10-中心衬板;11-排料格子板;12-大齿圈;13-端盖;
14-锥形体;15-楔铁;16-弹性联轴器;17-电动机;18-传动轴
球磨机主要由圆柱形筒体、衬板、隔仓板(多仓磨机才具备)、主轴承、进出料装置和传动系统等部分组成。
筒体(包括主轴承,见下图)

湿法球磨机的主轴承
1-轴承底盘;2-球面瓦座;3-定位销;4-球面瓦;5-轴承盖;6-螺钉
球磨机的筒体是球磨机主要工作部件之一。筒体工作时除承受研磨体的静载荷外,还受到研磨体的冲击,且筒体是回转的,所以筒体上产生的是交变应力。因此,它必须具有足够的强度和刚度。这就要求制造筒体的金属材料的强度要高,塑性要好,具有较好的机械性能和工艺性能才能保证磨机筒体的安全运行。
一般用于制造筒体的材料是普通结构钢,此种材料的强度、塑性、可焊性都能满足要求,随着工业的发展,磨机能力(产量)也向大型化发展,近来设计的大型磨机的筒体是用16Mn钢制造的。其弹性强度限比Q235的高约50%,耐蚀能力比Q235高50%,冲击韧性(尤其低温时)比Q235高得多。而且16Mn还具有良好的切削加工性、可焊性、耐磨性和耐疲劳性。所以16Mn是一种相当适宜的钢材。磨机运转时与长期停止时筒体的长度是不一样的。这是由于筒体温度不同引起热胀冷缩易导致球磨机筒体开裂。因此,在设计、安装与维护时都必须考虑到筒体的这一热胀冷缩特点。
一般磨机的卸料端靠近传动装置,为保证齿轮的正常啮合,在卸料端是不允许有任何轴向窜动的,故都是在进料端有适应轴向热变形的结构。
筒体的轴向热变形在球磨机结构上有两种考虑方法:一种是用中空轴颈的轴肩与轴承间的预留间隙(a、b)来考虑,如图1-11所示。另一种是在轴承座与底板之间水平安装数根钢棍。

图 1-11 球磨机筒体轴向热变形的预留间隙
如图1-12所示。当筒体热胀冷缩时,进料端主轴承底座可沿辊子移动。

图 1-12
筒体上每个仓都应开设一个磨门(又称人孔)。磨门的作用是镶换衬板、隔仓板,装填或倒出研磨体及停磨检查磨机仓内情况等。
球磨机的主轴承常用的是滑动轴承,其直径很大,但长度很短,如图1-10所示。轴瓦用巴氏合金浇铸。与一般滑动轴承不同之处在于仅仅下半部有轴瓦。整个轴承除轴瓦用巴氏合金浇铸外,其余都用铸铁制成。由于球磨机的跨度和载荷很大,将发生一定程度的挠曲,而且制造和装配的误差也难以保证准确的同轴度,因此,轴承制成自动调位型,球面瓦座2和球面瓦4之间以球心为旋转中心能够稍有相对移动,使作用于轴瓦上的载荷分布均匀。
球面瓦座2和球面瓦4之间还设有定位销,以限制球面瓦移动的范围。在安装时,可以用螺钉6调整球面瓦座2的位置。也有用斜楔调整的。主轴承是球磨机的一个关键部件,对于其润滑问题必须充分重视,一般都采用稀油集中循环润滑,小型机也有的采用油环润滑、油环滴油润滑或毛线润滑等方式。
球磨机价格详细垂询:0371-67772626
球磨机厂家地址:郑州-国家高新技术产业开发区檀香路8号
上一篇:对辊破碎机的工作原理与结构
下一篇:雷蒙磨(雷蒙磨粉机)概述
想了解设备资料?报价?售后?请留言,速回电
厂家直销,留言立享本月优惠价免费提供环保政策、办厂手续、投资预算等资料
3分钟前 高先生:时产200吨制砂机报个价,处理鹅卵石
8分钟前 李先生:移动式破碎机怎么解决粉尘问题?
13分钟前 徐女士:需要制砂机,南宁能看制砂现场吗?
16分钟前 程先生:破碎生产线出个方案及报价,有什么售后服务?
22分钟前 郑女士:想了解时产500吨锤破,加工石灰石
31分钟前 吴先生:成套石头破碎设备有吗?给个详细产品资料
36分钟前 罗先生:每小时100吨左右的鄂破和反击破,推荐下型号
42分钟前 梁先生:膨润土磨到200目,用什么磨粉设备?
提交留言我们会第一时间回复您!
水泥球磨机是水泥厂设备,水泥球磨机主要用于建材、冶金、电力及化工行业粉磨各种水泥熟料及其它物料。我公司可根据用户需要的产量、细度要求设计制造符合用户实际需要的水泥专用球磨机。
2018-05-11水煤浆作为一种液体燃料,便于燃烧、使用,其性质稳定且燃烧率达到98%以上,燃烧时排放量低、产品运输方便,在医院、学校、电厂、集中供电厂等领域有所应用。
2017-08-30市场上的球磨机品牌比较多,每个品牌下的实力水平、设备质量都是不同的,那么好的球磨机品牌是哪个呢?这是广大消费关注的焦点问题,接下来就由欧亿网页版机器小编为大家对这一问题进行简要阐述。
2017-05-09小型球磨机是厂家研制的一款规格比较小的磨矿设备,不仅体积大大缩小,重量也大大减轻,操控更加简单容易,可移动到任何加工厂进行生产运行,具有产量高、运行效率高、成本低等性能优势,颇受小规模加工厂的青睐与欢迎。
2017-03-06球磨机属于选矿类设备,它的功能与作用就是对各种物料实现磨矿作业,随着该设备应用范围的不断深入,它对物料种类的加工范围也是越来越宽泛,包括金属矿、非金属矿以及黑色金属等等,并且加工之后所呈现出的物料状态都能达到客户满意的效果。节能型球磨机是针对能源方面的过度消耗而新研制的一种设备,它不仅工作效率高,并且在节能环保领域能凸显该设备的具体优势,从市场上的销售量我们不难发现:该设备是功能性极强的设备,客户对它的评价相当高,这也是该设备有如此高销量的主要原因之一。
2016-07-28球磨机一般由筒体、端盖、轴承和传动大齿圈等部件组成。以下是欧亿网页版总结三种常见球磨机的工作原理,基本上都相似,其中有一些结构和磨矿方式等差异。
2009-07-11